#1/#2箱变逆变器配置图
#3/#4/#5台变 逆变器配置图
冷库屋面组件排布图
厂房2屋面组件排布图
办公室1屋面组件排布图
办公室2屋面组件排布图
冷库屋面组件串线图
厂房2屋面组件串线图
办公室1屋面组件串线图
办公室2屋面组件串线图
冷库屋面交直流桥架布置图
厂房2屋面交直流桥架布置图
办公室1屋面交直流桥架布置图
办公室2屋面交直流桥架布置图
冷库屋面防雷接地布置图
厂房2屋面防雷接地布置图
办公室1屋面防雷接地布置图
办公室2屋面防雷接地布置图
10kV系统主接线图(接入前)
10kV系统主接线图(接入后)
开关站平面布置图
开关站10kv环网柜面板图
开关站G0110kV光伏出线柜二次接线原理图
开关站G0110kV光优出线柜二次接线原理图:
开关站G0210kv光伏计里柜二次接线原理图
开关站G03 10kV PT柜二次接线原理图
开关站G04~610kv光伏进线柜二次接线原理图
开关站G04~610kv光伏进线柜二次接线原理图
开关站设备平面/立面布置图
1箱式配电站(1000kVA)配置图(原有)
#2箱式配电站(500kVA)配置图(原有)
#3台变安装大样图
#4/45台变安装大样图
光伏开关站基础图
基础钢筋布置平面图 1-1剖面图
基础钢筋布置平面图 2-2剖面图
电缆井基础图
二次仓基础图
基础钢筋布置平面图 1-1剖面图
基础钢筋布置平面图 2-2剖面图
电缆井基础图
二次预制仓地网示意图
电缆顶管施工示意图
铝合金支架设计总说明
冷库屋面檩条、夹具布置图
冷库屋面组件压块布置图
厂房2屋面檩条、夹具布置图
厂房2屋面组件压块布置图
钢支架结构设计总说明
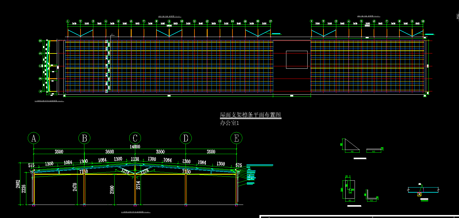
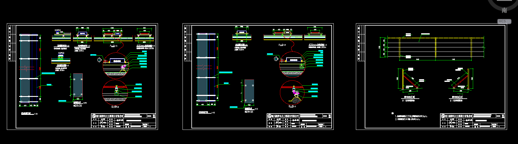
办公室1屋面檩条、夹具布置图
办公室1屋面组件压块布置图
办公室2屋面檩条、夹具布置图
办公室2屋面组件压块布置图
逆变器安装示意图
纵向运维通道大样图
横向运维通道大样图
围栏安装大样图
















